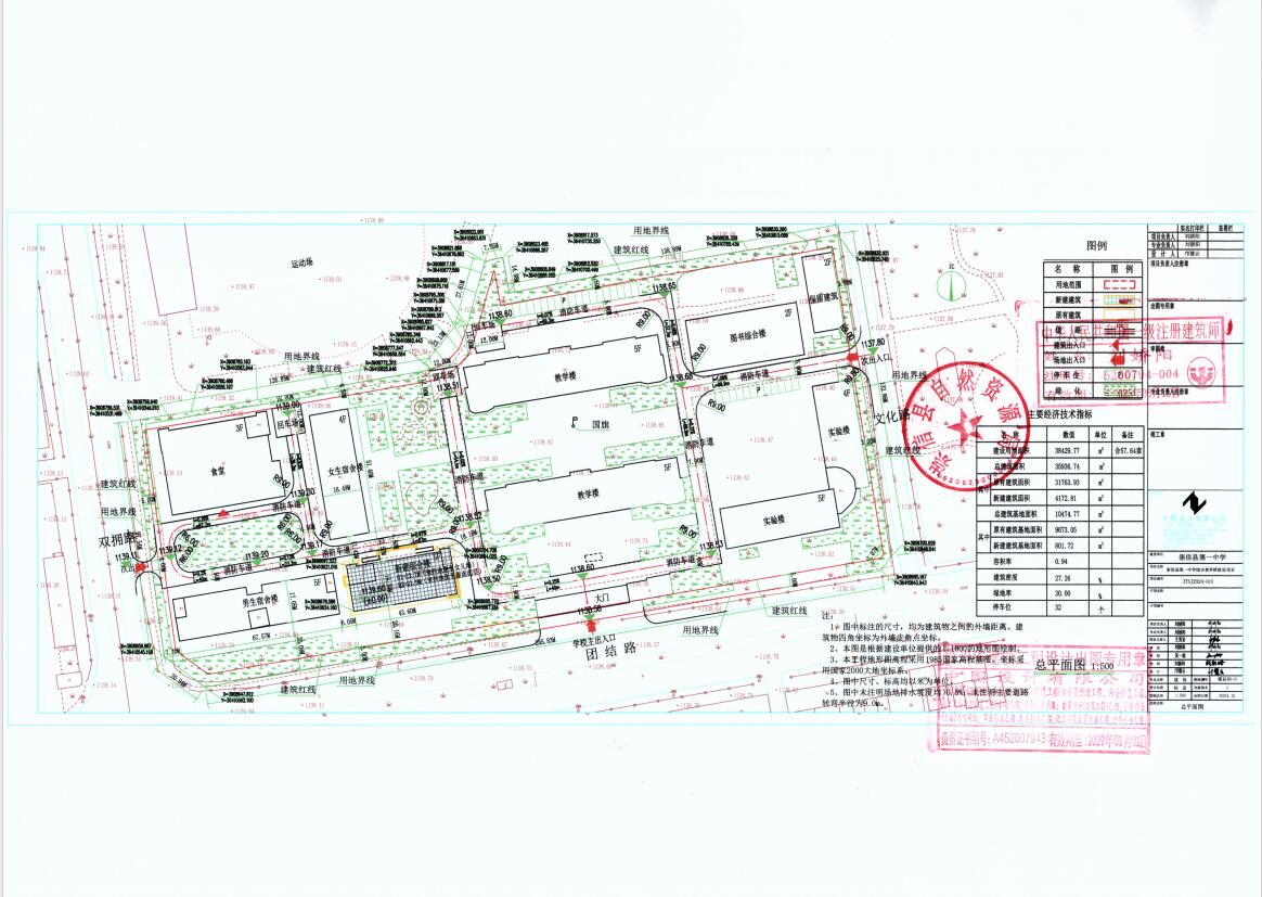
崇信县第一中学综合教学楼建设项目 建设工程规划许可证 公示 发文日期:2025-01-03 18:33 来源:崇信县自然资源局 作者:崇信县自然资源局 编辑:崇信县自然资源局 扫一扫在手机打开当前页 上一篇: 崇信县重点流域农业面源污染治理项目-城乡有机废弃物资源化处理中心 批前公示 下一篇: 崇信县第一中学综合教学楼建设项目 批前公示