公示时间:2024年7月23日至2024年7月31日
批前公示旨在征询公众意见,并非最终审批结果。如您对该规划项目有意见表达,请在公示期内将书面意见邮寄或送达至崇信县自然资源局(请注明“公示反馈意见”),公众意见将作为审批决策的重要参考依据。
地址:崇信县自然资源局(崇信县永丰街206号)
联系电话: 0933-6121193 0933-6124919
一、项目概况
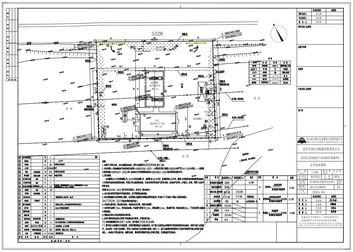
崇信县五举加油加气站位于崇信县五举社区,五举煤业公司以西约4.4公里,达溪河以北,省道S320以南。项目规划用地性质为零售商业用地(090101),用地面积0.3公顷(合4.5亩),容积率≤1.0,建筑密度≤35%,建筑高度≤12米。项目规划总建筑面积约400平方米,计划新建站房、加油罩棚,预留加气、充电及光伏发电等区域。
二、建设单位
崇信中油公刘能源有限责任公司



