公示时间:2024年10月10日至2024年10月21日
批前公示旨在征询公众意见,并非最终审批结果。如您对该规划项目有意见表达,请在公示期内将书面意见邮寄或送达至崇信县自然资源局(请注明“公示反馈意见”),公众意见将作为审批决策的重要参考依据。
地址:崇信县自然资源局(崇信县永丰街206号)
联系电话: 0933-6121193 0933-6124919
一、项目概况
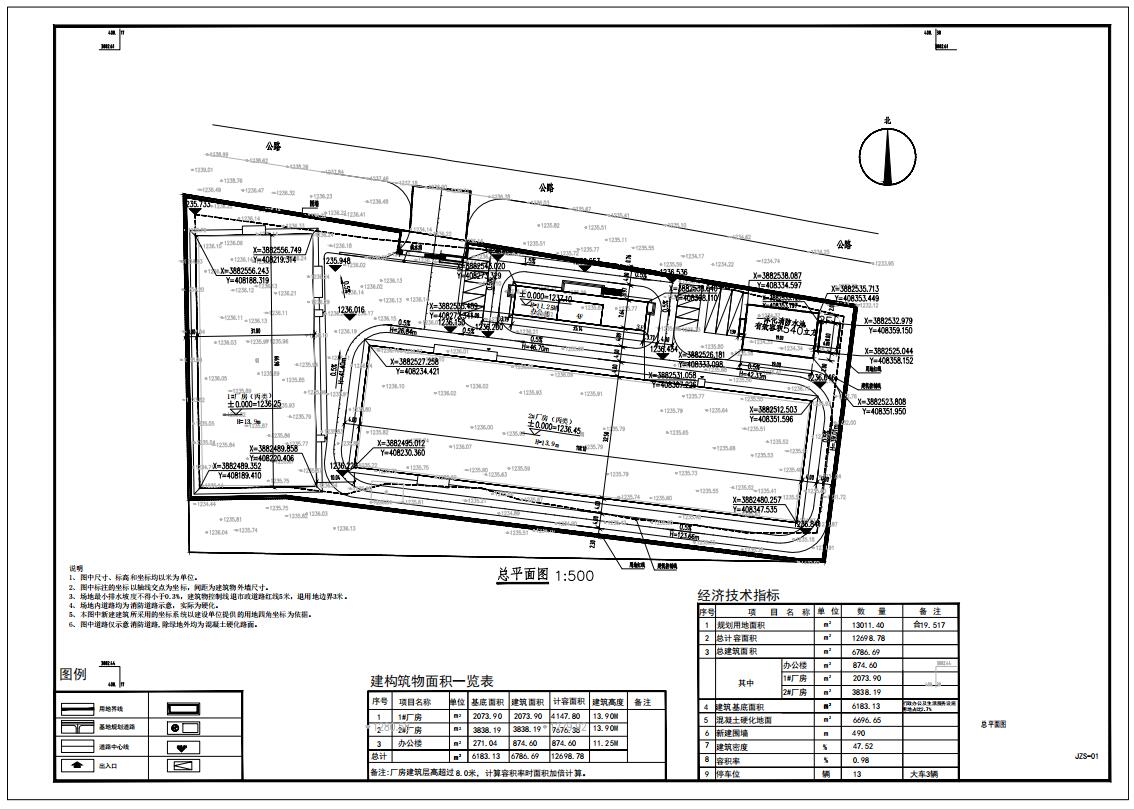
崇信县鲁瑞新型建筑材料有限责任公司五举工业固废处理项目位于崇信县五举社区范围内,南侧为省道S320,西侧、东侧、北侧为农田。项目规划用地性质为工业用地(1001),用地面积1.3011公顷(合 19.52 亩),容积率0.98,建筑密度47.52%。项目规划总建筑面积约6786.69平方米,计划新建1#厂房、2#厂房、办公楼。二、建设单位
崇信县鲁瑞新型建筑材料有限责任公司


